BLOGI 68 19.10.2015
Kaupunkibulevardit tulessa
Suomalaiset ovat tunnetusti itsepäisiä ja yksitotisia. Päätä lyödään seinään ja kerrallaan voi olla vain yksi totuus. Kuten kaupunkibulevardit. Yleiskaavan visiossa ja luonnoksessa tätä on jo hehkutettu. Tuoreessa kaavaehdotuksessa saamme näyttöä siitä miten idea ottaa tulta. Eli miten se toimii paperilla. Tai miten se ei toimi vaikka onkin helposti syttyvää. Hyvä esimerkki on Länsiväylän kaupunkibulevardi Lauttasaaressa (yleiskaavaehdotuksen selostus, sivu 25):
Tietenkin tämä on vain yksi tapa toteuttaa kaupunkibulevardi. Silti voi tehdä huomioita siitä mitä tuleman pitää. Lauttasaaressa kaikki (2) eritasoliittymät Länsiväylälle ja yksi ajotunneli sen ali on poistettu. Tilalla on kaksi tasoliittymää kaikelle liikenteelle. Yleiskaavassa kaupunkibulevardi-merkintä jatkuu myös vieressä olevan Koivusaaren läpi. Valtuuston hyväksymässä osayleiskaavassa siellä on kuitenkin ramppeineen ja rinnakkkaisteineen 10-12 kaistainen moottoritiemaisema ja mikä parasta – uusi täydellinen miljoonia maksava eritasoliittymä saaren keskellä. Käsittämätöntä! Kuulen jo Osmo Soininvaaran sanovan, ettei tämä oikein pelitä.
Lauttasaaressa Länsiväylä on yleiskaavassa suurelta osalta siirretty hieman toiseen paikkaan ja mutkat pantu suoriksi. Väylän pohjoispuolella on uusi rinnakkkaiskatu. Tiiviiltä näyttää. Kaikki mahdolliset ja mahdottomat paikat on ahdettu täyteen rakennuksia. Asukkaita voi tulla 5000 – 10000. Merta on täytetetty viitisen hehtaaria.
Zuumaus saaren keskeltä paljastaa lisää tulenarkuutta:
Lauttasaaren liikuntapuistoa on supistettu ja siirretty toiseen paikkaan. Myös Lahnalahdentien mutka on pantu suoraksi. Lauttasaaren veneilijöiden satama ( 160 laituripaikkaa) kerhorakennuksineen ja telakointialueineen (142 talvisäiytyspaikkaa) on poistettu. Mielenterveysongelmista kärsivien naisten tukikoti rannalla on räjäytetty. Ruukinlahden puisto on hävitetty.
Tiheä ja korkea rakentamistapa osoittaa, että kaikki autopaikat on tarkoitus sijoittaa talojen ja pihakansien alle. Tämä on kallista ja vaikeuttaa sosiaalisen asuntotuotannon toteuttamista. Lisäksi tulevat liikenteen meluhaitat ja hiukkaspäästöt, jolle suuri osa ympäristöstä altistuu. Puhumattakaan siitä, että liikenne tukkeutuu ja tulee lisää vaaran paikkoja erityisesti kevyelle liikenteelle. Hullua! Eihän tämä edes toimi ja lisäksi tulee kamalan näköistä tehoympäristöä! Mutta onhan sentään yksi asia ksv:n kuvassa periaatteessa oikein: Pyöräraitti Länsiväylän pohjoispuolella (punainen viiva). Muuta sekään ei käytännössä toimi baanana, koska siinä on useita vilkasliikenteisiä tasoristeyksiä hidastamassa ajoa.
Tapani mukaan olen laatinut samalle alueelle vaihtoehtoisen suunnitelman:
Nykyiset toiminnat alueella säilyvät eikä merta täytetä. Ruukinlahden puistoon – Länsiväylään melken kiinni – on sijoitettu saarelle kaivattu koulu (sille alueelle, joka on ollut metrotyömaana). Rakennuksen muurimainen pohjoisivu toimii suojana liikenteen haittoja vastaan jolloin eteläpihasta tulee riittävästi melulta ja hiukkaspäästöiltä suojattu ja koko puiston käyttöarvo paranee. Tämä on hyvä paikka koululle ajatellen Koivusaareen tulevaa asutusta (5000) sekä yleiskaavan sallimaa tiivistämistä metroreitin varteen. Tämä on myös ainoa kaupungin omistama tarpeeksi iso tasainen alue, johon saadaan koulun tarvitsemat pihat ja kentät, jotka voivat toimia kaikkien käytössä osana liikentapuistoa. Lauttasaarentien ja Länsiväylän väliseen rakentamattomaan kolmioon sopii korkeakin toimistotalo. Länsiväylää bulevardisoidaan puuistutuksin ja sen pohjoispuolella on nopea seudullinen polkupyöräraitti (baana). Ei tässä muuta tarvita.
Lauttasaaren koillisosalla Maamonlahden alueella kaupunkibulevardi ksv:n suunnitelman mukaan näyttää tältä:
Merta täytetään tälläkin alueella pari hehtaaria. Suunnitelmasta ei ilmene miten Länsiväylän eteläpuolen uusien kerrostalojen tonttiliikenne hoidetaan. Syötetäänkö ne suoraan Länsiväylältä vai onko sen eteläpuolellakin uusi asuntokatu? Sitäpaitsi on vaikea kuvitella miten Länsiväylle saataisiin toimiva joukkoliikenne, mikä on kaupunkibulevardin tärkein edellytys. Metrolinja kulkee lähellä, mutta kuitenkin liian kaukana. Hsl ei tunnetusti halua metron kilpailijaksi samansuuntaista bussi- tai ratikkalinjaa viereen. Matkaa metroasemalle tältä alueelta tulee yli kilometrin eikä tähän saada helposti sujuvaa ja tarpeeksi tiheää syöttöliikennettäkään. Ei pelitä!
Alla näkymä Maamonlahdentien sillalta kaupungin suuntaan. Yleiskaavan mukainen rakentaminen esitetty valkoisilla viivoilla:
Käsi ylös kuka tykkää tästä! Itseltäni loppuivat jo adjektiivit. Lansiväylän eritasoliittymät Lauttasaaressa tulee säilyttää eikä tasoliittymiä sille tule sallia. Muutoin ei liikenne toimi. Ihan sama millä nimellä väylää kutsutaan.
Kotkavuoren puisto vielä pystyssä olevine vesitorneineen rajoittuu Länsiväylään etelässä. Yleiskaavassa puistoa ei ole noteerattu viheralueena. Se on esitetty rakennettavaksi kantakaupunkimaisella tehokkuudella. Vesitornihan puretaan vielä tänä syksynä ja tilalle jää tyhjä tila. Fysiikan lakien mukaan tyhjät tilat pyrkivät täyttymään tavalla tai toisella. Esitän tässä toisen tavan millä puisto – Julius Tallbergin pojan Gunnarin rakennuttamine – huviloineen säilyisi ja lisärakentaminen olisi hallittua ja alueen luonteeseen sopivaa.
Uusia 4-5 kerroksisia asuinkerrostaloja olen esittänyt Pohjoiskaaren ja Taivaanvuohentien varrelle alueelle jossa nyt on ryteikköä. Halpa toteuttaa. Infra on olemassa. Puisto huviloineen säilyy. Uutta rakentamista Länsiväylän alueella ei täälläkään tarvita.
Jatketaan Länsiväylän kaupunkibulevardin tarkastelua kaupunkiin päin. Yleiskaavassa on edelleen mukana varauksena miljardiluokan keskustatunneli, jonne autot Salmisaaresta sukeltaisivat kaupungin ali Itäväylän suuntaan. Kaupunkibulevardi tunnelissa! Ei tämäkään oikein pelitä. Taustalla kummittelevat Ruoholahden sumpun liikenneongelmat, jotka kuulemma liikennesuunnittelijoille tulivat yllätyksenä. Jotain tarttis tehdä:
Jotenkin tuntuu siltä että kaupunkibulevardi-palapelissä Länsiväylän vierekkäiset palat eivät oikein sovi yhteen. Kun Ruoholahden sumppuun tulee Jätkäsaaren asutuksen lisäksi Hernesaaren 5000 asukasta ja yleiskaavan 20 000 uutta asukasta Lauttasaareen (Koivusaari mukaan luettuna) niin sumppu on täydellisesti umpisolmussa. Kaupunkibulevardin toteuttamisen jälkeen umpisolmu laajenee Länsiväylällä koko Lauttasaaren alueelle. Eivät kaupungin suunnittelijat ole niin tyhmiä etteivät tajuaisi tätä.
Kaupunkibulevardit ovat tietoinen ja harkittu yritys sumputtaa yksityisautoliikenne siinä hurskaassa uskossa, että ihmiset siirtyvät joukkoliikenteeseen ja käyttämään polkupyöriä. Tämä on fataalia Länsiväylän osalta, kun Länsimetron asemille tyhmän päätöksen johdosta mahtuvat vain lyhyet junat. Jos kallista metron automatisointia ei tule, on länsimetrolla ennusteiden mukaan jo kapasiteettivaikeuksia 10 vuoden kuluttua linjan aukaisemisesta. Ei pelitä!
Tunneleista puheen ollen – ne ovat nyt muotia:
Tässä hankkeessa voisi ollakin järkeä. Ja hintakin on kohtuullinen. Sen sijaan Kruununsilloissa ei ole mitään järkeä. Asia on kaupunginhallituksessa päätettävänä ja jäi kokouksessa 12.10. pöydälle. Siltasuunnitelmat on laadittu ratikoille ja kevyelle liikenteelle. Osa päättäjistä haluaisi päästää autotkin sillalle.
Tähän asti hankkeen on arvioitu maksavan alle 200 miljoonaa euroa. Ensimmäistä kertaa hinnan on Hesarin uutisoinnissa todettu olevan yli 200 miljoonaa euroa. Mutta eihän se tietenkään siihen jää. Kyllä menee yli 300 miljoonan ja paljon. Ja jos autot tulevat mukaan niin maksaa maltaita ja liikenne kantakaupungissa tukkeutuu pahoin. Tyhmä kysymys: halutaanko Kruununsilloille sujuva autoliikenne korvaamaan sitä, että Itäväylän kaupunkibulevardi jumiuttaa tämänkin väylän?
Unohtakaa kallis, maisemaa pilaava ja talvella sekä myrskyllä kevyelle liikenteelle ankea ja vaarallinen siltahanke kokonaan. Kruunuvuorenrannasta lauttamatka Katajanokalle kestää vain 6 – 8 minuuttia. Infra on valmiina eikä maksa mitään. Muutamalla miljoonalla saisi kaksi modernia lauttaa Vancouverin mallin mukaan. Ja pääseehän metrolla stadiin Hertoniemen kautta.
Suunnitteilla ja valmisteilla olevat uudet joukkoliikenneinfrat ovat erittäin kalliita. Kukahan maksaa?
![]()
Uudet infrat eivät edes välttämättä paranna joukkoliikenteen palvelutasoa kuten Lauttasaaren esimerkki osoittaa: Länsimetron tulon jälkeen palvelutaso romahtaa osalla saarta, jossa ei voida järjestää kunnon liityntäliikennettä. Metro ei voi korvata paikkallisliikennettä Kamppiin. Ennen niin lyhyen ja nopean bussimatkan sijasta tulee vähintään yksi vaihto ja hitaat ylös-alas-kapuamiset metroasemille. Ei pelitä!
Miksi stadia pitää tiivistää älyttömästi?
Tämä on hyvä kysymys, jota minullekin vastaantulijat Lauttasaaressa usein esittävät. Sen verran tunnettu kylähullu olen. Yleiskaava tähtää 240 000 asukkaan lisäykseen vuoteen 2050 mennessä. Yleiskaavassa on kuitenkin vielä tätä enemmän potentiaalia. Sen aluevaraukset mahdollistavat kaksinkertaisen väestönkasvun. Tunnettu tosiasia on, että mahdollisuudet realisoituvat jos ja kun alueiden tiivistäminen vanhoja taloja purkamalla ja uusia rakentamalla on kannattava bisnes. Ja toistaiseksi näin on stadissa ollut. Lauttasaaresa jopa ylikuumentumiseen asti. Tällä hetkellä saarella on yhtäaikaa rakenteilla niin paljon uusia kerrostaloja, että niiden markkinointi on erittäin vaikeaa. Kaikilla paikoilla eivät enää menekään helposti kaupaksi näillä korkeilla hinnoilla.
Monilla on lisäkysymys, joka samalla sisältää vastauksen: Tiivistetäänkö stadia maahanmuutajille ja pilataanko nykyisten asukkaiden ympäristöt tämän takia? Muutamia vuosia sitten Helsingin entinen maankäytön apulaiskaupunginjohtaja Hannu Penttilä oli kuultavana Stadin rantaryhmän tilaisuudessa. Hannu vastasi kysymykseen, että maahanmuuttajia tarvitaan ja he tarvitsevat asuntoja. Sama todetaan Ylen:n uutisissa 13.10.2015
TURVAPAIKANHAKIJAT PIAN ASUNTOJONOSSA HELSINGIN VUOKRATUOTANTOON TULOSSA SUURI PIIKKI
Kysyn lisää tyhmiä kysymyksiä: Miksi entiset – minullekin opetetut- hyvät suunnitteluperiaatteet on heitetty romukoppaan? Miksi asuntoja sijoitetaan hiukkaspäästö- ja melualueille vilkkaasti liikennöityjen väylien varteen? Miksi ei enää välitetä riittävistä valokulmista kerrostalojen välillä? Miksi tehdään ehdoin tahdoin ”slummia” ja liikennettä sumputetaan erityisesti jalankulkijoille vaarallisella tavalla? Miksi puistoja poistetaan, luonnonrantoja täytetään ja veneilijöiden toimintamahdollisuuksia kuristetaan? Kysymyksiä riittää ja tehtävää. Ei yleiskaava vielä lainkaan ole valmis. Eikä tämmöisenään hyväksyttävissä.
Ai niin – mitä oikeastaan tarkoittaa yksitotinen. Tähän antaa hyvän vastauksen Elias Lönnrotin ruotsalais-suomalainen sanakirja vuodelta 1880. Sopii hyvin tämän viikon mietelauseksi:
YKSITOTINEN EN SOM DRICKER BLOTT ETT GLAS TODDY
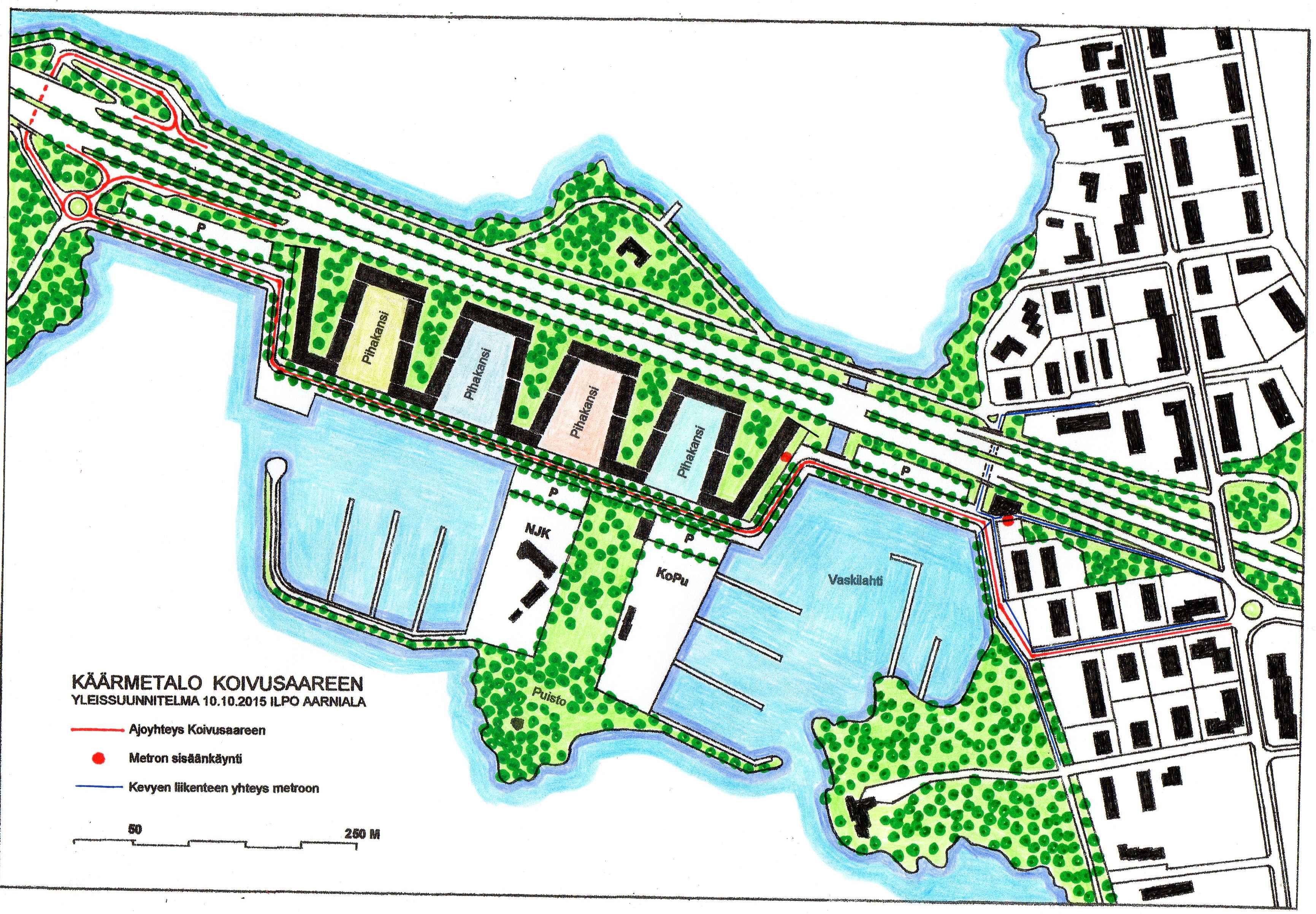
Yleiskaavaan liittyen katso myös blogini 5.10.2015 Käärmetalo koivusaareen


























