BLOGI 118 28.11.2016
Rintamamiestalo on rakas suomalainen brändi. Jo 80 vuoden ajan. Monessa! Sillä on voitettu kirjallisuuden Finlandia-palkinto 2002 ja pohjoismaiden neuvoston kirjallisuuspalkinto 2004. Kari Hotakaisen romaanissa ”Juoksuhaudantie” rintamamiestalo on pääosassa.
Ruotsiksikin käänetystä suositusta kirjasta on tehty Veikko Aaltosen ohjaama elokuva, joka on filmattu Maununnevan rintamamiestaloalueella.
Nukkekotiyhdistys on teettänyt syntymäpäiviensä kunniaksi rintamamies-nukkekodin, jota voi tilata kahdessa koossa.
Nyt, kun olemme jo päässeet sisään rintammiestaloon, on syytä jatkaa.
Mistä kaikki alkoi?
Asutushallituksen vuonna 1937 hyväksymä tyyppitalopiirustus. Huomaa leiman päivämäärä 28.2. Sehän on suomalaisen kulttuurin päivä ja liputuspäivä. Rintamamiestalo kuuluu osana suomalaiseen kulttuuriin Kalevalan rinnalla.
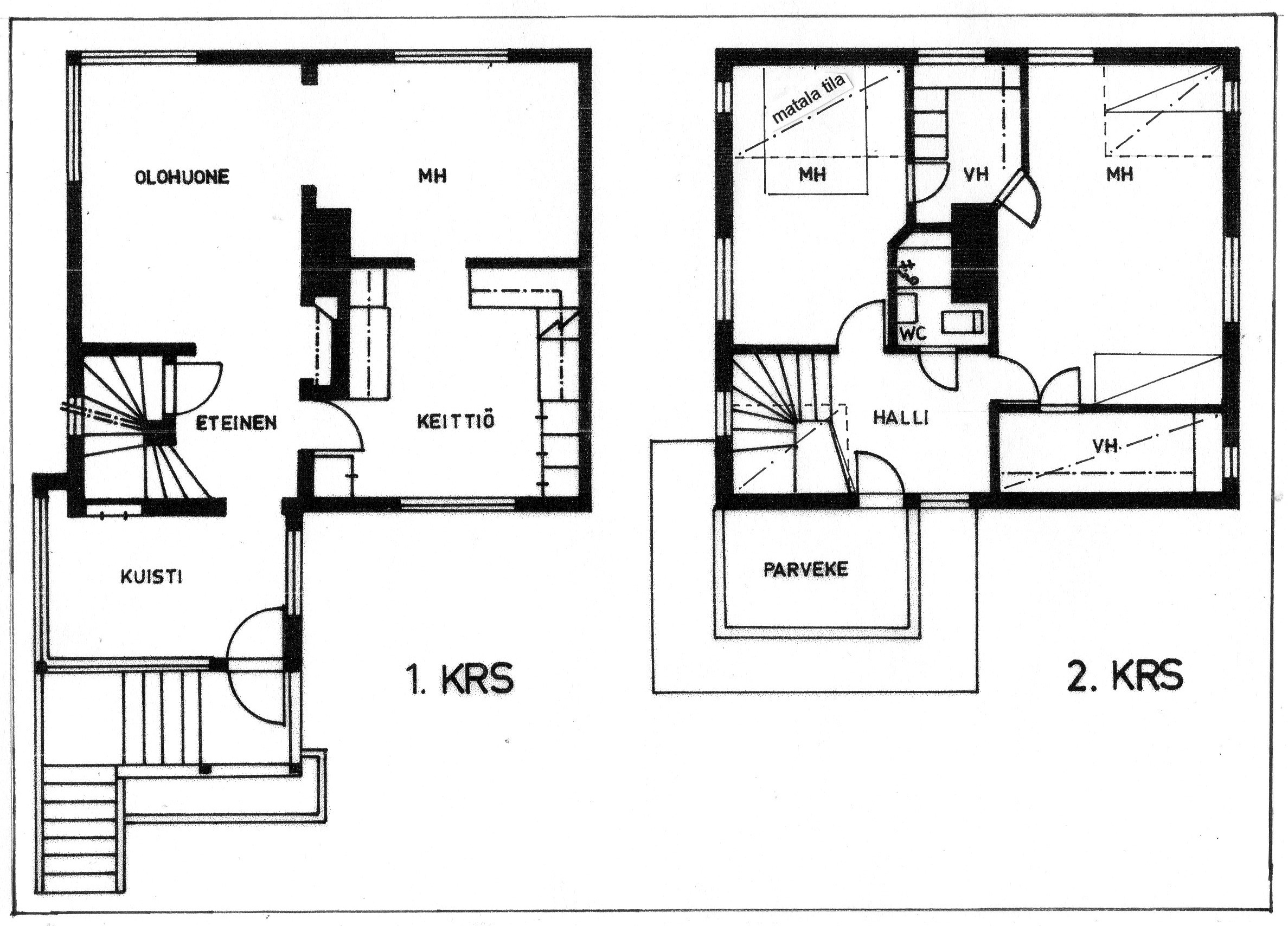
Puurakenteisen talo on ulkomitoiltaan maagiset 7 x 8 metriä. Huomaa myös, että kantavat pystytolpat on merkitty näkyviin. Alhaalla on kaksi huonetta ja keittiö. Yläkerrassa kaksi huonetta, jotka voidaan vuokrata myös ulkopuolisille, kuten asuntopulan aikana usein oli tilanne. Käynti yläkerran huoneisiin voitiin järjestää myös vilpolan kautta. Keskellä on kuusihorminen piippu viidelle tulisijalle ja keittiön poistoilmalle. Ei saniteettitiloja eikä välttämättä edes juoksevaa vettä. Ulkohuusi ja pihasauna olivat käytössä kaivon lisäksi.
Katon kaltevuus on 1:2. Yläkerran lappeen alla on matalaa säilytystilaa. Talo voitiin rakentaa tavallisesta sahatavarasta. Runko on kakkosnelosta eli koolinkia ja kattotuolit usein kakkosvitosta. Seinän eristys oli 10 cm sahanpurua mustan tervapaperin välissä. Hyvin tuulettuva ja terve rakenne jos ulkolaudoituksen alla on riittävä ilmarako. Muttei täytä lähimainkaan nykyisiä lämmöneristevaatimuksia. Sahanpurua pitäisi olla 30 cm seinissä ja yläpohjassa 60 cm!
Tässä olivat kaikki piirustukset mitä ”talopaketista” oli saatavilla. Mahtui yhdelle A4-arkille. Paperiakin säästettiin pulaikoina. Suunnitelmat olivat valmiina. Nyt puuttui enää sosiaalinen tilaus. Semmoinen tuli sotien myötä.
Rintamamiehet rakentavat
Sotien jälkeen oli valtava asuntopula. Asuntohallituksen tyyppipiirustukset tulivat tarpeeseen. Rintamamiehille annettiin ilmisia tontteja ympäri Suomea ja A4-arkki talon suunnitelmista. Niitä sovellettiin ulkomittojen puitteissa monella tapaa. Maanalaisesta kellarista tuli suosittu. Sinne saattoi rakentaa saunankin.
Kahdenkymmnen vuoden aikana Suomessa rakennettiin lähes 300 000 rintamamiestaloa. Suurelta osin omatoimisesti muun työn ohessa. WAU! Tämän perusteella arvioin, että noin kaksi miljoonaa suomalaista on jossain elämänvaiheessa asunut rintamamiestalossa. WAU!!
Perustyypin lisäksi firmat lanseerasivat erilaisia tyyppipiirustuksia ja taloja rakennettiin myös sarjatuotantona.
Puutalon ”Einontalon” ulkomitat olivat 9.6. x 7.6 metriä. Siinä oli saniteettitilat ja keittiö sekä ylhäällä että alhaalla. Taloon sopi kaksikin lapsiperhettä.
Kaukolantie
Artikkelia jatkaa tästä eteenpäin nimimerkki ”omakohtaista kokemusta on”. Vaimoni raskauden loppumetreillä hankimme vanhan 7 x 8-rintamamiestalon Espoosta. Se oli muuten alkuperäisessä kunnossa, mutta siinä oli pieni sisävessa ja keskuslämmitys. Vilpolasta meni portaat yläkertaan ja sielläkin oli pieni keittiö. Tällä suurella rintamamiesalueella tonttikoko oli keskimäärin 1000 neliötä.
Muutaman vuoden asumisen jälkeen kahden lapsen kanssa aloimme huomata homeenhajua yläkerrassa. Kun yläpohjaa avattiin, paljastui totuus: Kattotuolit olivat homeessa ja niistä kasvoi alaspäin noin 20 senttiä pitkiä harmaita sieniä. Osa kattotuoleista oli melkein läpimätiä ja lähes poikki. Hullu arkkitehti laati piirustukset ja talo korjattiin. Vanha katto kokonaan pois ja tilalle uusi 10 cm harjastaan korotettu. Lisäksi korotettiin lappeiden keskivaiheilla räystästä molemmin puolin runsaalla metrillä ikkunoiden saamiseksi sisätiloihin.
Portaiden alla ollut pikkuvessa poistettiin ja portaat ohjattiin kulkemaan eteishallista. Yläkertaan tuli suihkutila ja wc sekä parveke kuistin päälle osittain sen katon sisään. Parveke tehtiin vanerista ammeeksi ja laminoitiin lasikuidulla. Toinen timpureista oli veneentekijä.
Keskuslämmitys poistettiin ja tilalle tuli sähkölämmitys. Lämmönjakohuoneeseen tehtiin wc. Alakertaa ei muutoin remontoitu.
Keskikerrostakaan ei remontoitu maalausta lukuunottamatta. Yläkertaan tuli seiniiin lisää 5 cm vuorivillaa. Kattotuolit tehtiin pihalla 2×5 soiroista. Rakennetarkastaja tuli paikalle, kun rakenteet olivat valmiit. Hän ei ensiksi halunut hyväksyä näin ohuita kattotuoleja. Fiksu konstruktööri selitti hänelle, että vinolaudoitus kattotuolien päällä tekee niistä jatkuvan staattisen kehän ja että riittävällä naulauksella on varmistettu rakenteen kestävyys. Rakennetarkastajan oli annettava periksi ja hyväksymisleima paperiin tuli.
Asuimme talossa 11 vuotta. Tämän jälkeen ymmärrän hyvin netissä esitetyt lukuisat rintamiestaloon liittyvät ongelmat. Yleinen vaiva on yläpohjan ja kellarin huono tuuletus ja siitä johtuvat kosteus- ja homeongelmat. Rintamamiestalossa on haasteensa. Parasta oli kuitenkin iso piha, jossa lapset saattoivat telmiä.

Valoisa etupihan idylli viidakon keskellä hiekkalaatikkoineen ja puutarhakalusteineen. Vasemmalla entisen ulkorakennuksen perustuksien päälle rakentamani leikkimökki. Lipputanko kuuluu tietysti asiaan tai ainakin se mitä siitä on jäljellä.
Muistelen kaiholla rintamamiestontilla vietettyä aikaa. Kesällä pihassa oli puhallettava uima-allas. Talvella meillä oli iso luistinrata, jossa järjestettiin aikuisillekin ”rusettiluistelua” musiikin kera. Liukumäistä ja monihuoneisista lumilinnoista puhumattakaan. Aikansa kutakin.
Loppukaneetti
Rintamamiestalo oli ihanteellinen tyyppitalo aikanaan. On jo tullut selväksi ettei sen seinien lämmöneristys täytä nykyisiä energiatehokkuusvaatimuksia. Se ei myöskään sisällä nykyisin asumiselle katsottavia välttämättömiä saniteettitiloja. Puhumattakaan siitä, että nämä tilat olisivat esteettömiä vaikka ne jotenkin olisi saatu sisälle mahtumaan. Monine portaineen se on liikuntaesteiselle mahdoton asua. Rintamamiestalolle ei enää nykyään saisi rakennuslupaa.
Uudet tuulet ja vaatimukset puhaltavat tyyppitalorintamalla. Minkälainen on moderni ”rintamamiestalo”. Siitä enemmän ensi viikolla, jolloin tässä sarjassa on vuorossa ”Helsinki-talo”. Yksi asia on jo nyt selvää. Uudenaikaisen tyyppitalon piirustukset eivät mahdu yhdelle A4-arkille.
MIETE 115 KUN POISTUN EN HALUA HILJAISTA HETKEÄ MUISTOKSENI NE JOTKA OVAT PAIKALLA OTTAKOOT UUDET LASILLISET












