BLOGI 53
11.5.2015
Vanha huvila
Tältä saaren ensimmäinen huvila näytti lännestä katsottuna 40 vuotta sitten, kun minä tulin kuvioihin mukaan:
Tai eihän se mikään huvila ollut vaan lautamökki 6 m x 4 m. Ja tässäkin on jo kaksi laajennusta. Keskellä on alkuperäinen huone, johon tehtiin myöhemmin jonkinlainen lasikuisti (vasemmalla). Appiukkoni rakennutti oikealla näkyvän keittiön ja savupiipun. Tarina on semmoinen, että kalastaja Muurinen Seiskarilta sai menetetyn kotipaikkansa vastineeksi Sarvenniemen ja puolet Sarvenniemenkaria. Sarvenniemeen kalastaja rakensi perheelleen kodin. Päätalon, kesämajan, saunan, ulkorakennuksia sekä venevajan. Vähäpätöisiä tönöjä kaikki rannan tuntumassa. Pieni pellon tapainenkin oli ja puutarha sekä kaivo. Ihmettelen miten perhe tuli toimeen talvella. Lähimpään kylään oli kolme kilometria matkaa vaikeakulkuista kinttupolkua pitkin. Pääpaikka Sarvenniemessä oli aamuaurinkoon suunnattu kuten kalastaja-asuntojen tulee olla. Kalastajan vaimo halusi kuitenkin kesällä nauttia ilta-auringostakin. Eukko sai toiveensa toteutetuksi saareen.
Nykyään mökki näyttää kaikkine laajennuksineen tältä. Voi ehkä jo sanoa huvilaksi – onhan siinä peräti neljä huonetta ja keittiö sekä kaksi katettua kuIstia vaikka pinta-alaa on niukasti.

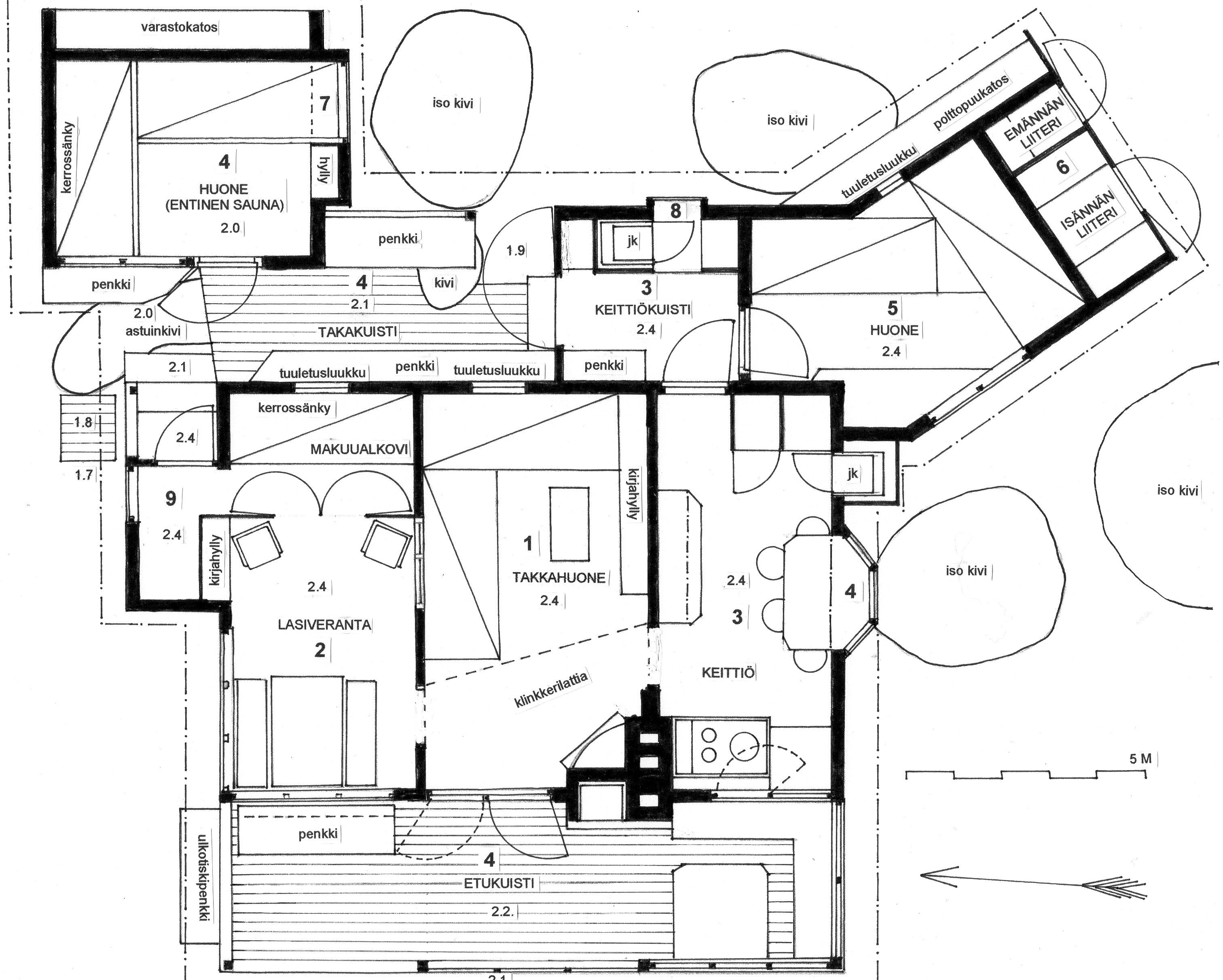
Huvilan plaani. Laajennusvaiheet on merkitty numeroilla. Vaiheissa 4-5 minulla oli apumiehiä, pari timpuria ja muurari. Vaiheet 6-9 ja sisustukset sekä paljon muutakin olen tehnyt itse. Viimeinen vaihe (9) on vielä kesken. Jokaisesta huoneesta on oma ovi katetulle kuistille.

Huvila lännestä ilta-auringossa. Keittiön ikkuna on ennallaan ja katon muoto. Kaikki muu on muutettu. Savupiippuakin on korotettu.

Tervetuloa huvilan länsikuistille. Tämä on pääsisäänkäynti.
Kuistin keskiosan suojana säätä vastaan on kolme täysikorkeaa 4 millin pleiä, jotka on puulistalla ja ruuveilla kiinni tukirakneteessa (45 x 22). peiraatteessa plexit voidaan irroittaa helosti, mutta vielä ei ole tullut tarvetta siihen. Saaressa kuitenkin usein tuulee.

Tässä kuvassa plexit ovat mukana, mutta niitä on vaikea huomata, koska ne uppoavat lattialaudoituksen rakoon näkymättömästi.


Näkymä kuistin sisäosasta kohti saunamökkiä.

Huvila saunakuistin katolta katsottuna

Keittiön ja kaakkokamarin ikkunat. Niiden välissä vanerinen kaasujääkaapin kotelo.

Huvila käymäläkiveltä katsottuna.

Ulokkeena olevan varastokopin ovet avoinna. Vasemmalla isännän liiteri ja oikealla emännän. Niiden välisessä seinässä on liiterin sisään rakennettu ”linnunpönttö”. Plexiseinän takaa voi tarkkailla pesän elämää.

Huvila kaakosta. Jättiläinen on sirotellut maastoon aika monta isoa kiveä. Niiden väleihin piti rakennelmat sovittaa. Tosin appiukko rakentaessaan keittiön räjäytti tiellä olleen kiven palasiksi. Tämä tapahtui ennen minun aikaani.

Hieman lähemmäs mentäessä näkyy keskellä takakuistin toinen sisäänkäynti ja sen oikealla puolella koilliskamarin ikkuna.

Huvila idästä aamulla. Katto jatkuu samana kaikkien laajennusosien päällä. Koilliskamari takaseinällä on roikkuva varasto. Sen ylimmällä hyllyllä on 18 pahvista paprikalaatikkoa, joissa on helloihin sopivat polttopuut valmiiksi lajiteltuna. Enimmäkseen saaresta kerättyjä oksia.

Huvila koillisesta. Keskellä jälleen takakuistin toinen sisäänkäynti ja sen vasemmalla puolella keittiökuistin ikkuna.

Koilliskamarin pohjoisseinällä leveän kattolipan alla säilytetään haravia ja harjoja. Tämä oli ennen sauna. Siksi siinä on sokkeli leca-harkoista.

Takakuisti. Vasemmalla kolliskamarin ovi ja ikkunat, joissa on luukut kiinni-asennossa.

Kuistin perältä noustaan pari askelmaa keittiökuistille, joka takana näkyy sisäänkäynti kaakkokamariin.
Takakuisti on läpikulku- ja varastotila. Kuisti toimi 15 vuotta myös saunan vilvoittelutilana. Siitä on ovi neljään huoneeseen – kolmeen makuukamariin ja keittiöön. Oikealla näkyy kaakkokamarin lasiovi avattuna. Sinne piipahdamme seuraavaksi.

Sisääntulonäkymä kaakkokamariin.

Kaakkoiskamari valmistui 30 vuotta sitten.

Huvila luoteesta viime kesänä ennen laajennusvaiheen nro 9 aloittamista.

Ymnpäri mennään – yhteen tullaan. Tämmöinen se luoteissivu oli 40 vuotta sitten.

Nyt on aika astua huvilan pääsisäänkäynnistä sisätiloihin. Ovi on auki.

Sisääntulonäkymä olohuoneeseen.

Näkymä olohuoneesta piharantaan.
Mökin alkuperäinen ainoa huone on nykyisin olohuoneena ja makuukamarina. Alkuperäinen ulkoikkuna yläkuvassa vasemmalla on säilytetty huoneiden väliseksi ikkunaksi. Puulattiat on lakattu venelakalla.

Tv-nurkkaus. Sohvat ovat itse tehtyja ja kaapistot kierrätyskamaa.

Anoppi aikoinaan halusi tähän välttämättä tällaisen takan. Vasemmalla pilkottaa keittiön puuhella, joka sekin on anopin vaatimuksesta tehty.

Näkymä olohuoneesta keittiöön.

Keittiö.
Appiukon suunnittelema ja rakennuttama keittiö on todellinen putkikeittiö. Leveys 175 cm. Ylhäällä oikealla näkyvä ikkuna on ainoa kaupasta ostettu ja avattavissa koko saarella.

Keittiöön tuli avaruutta ja käyttökelpoisuutta lisää kun nikkaroin siihen tämän erkkeri-ikkunan pöytineen. Taustalla näkyy iso ”käymäläkivi” ja sen takaa pilkottaa käymälän yläosaa – aasinsilta seuraavaan blogiin.
Jatkokertomus jatkuu viikon kuluttua.
SEURAAVAKSI:
KÄYMÄLÄ 30 VUOTTA
HAJUTONTA JA MAUTONTA ARKKITEHTUURIA

Hullu arkkitehti
MIETE 53
SUMUSSA ON SE HYVÄ PUOLI
ETTÄ HETI TIETÄÄ
OLEVANSA EKSYSSISSÄ
KIRKKAALLA SÄÄLLÄ
VOI JOUTUA KÄVELEMÄÄN KAUAS
ENNEN KUIN HUOMAA ETTÄ
POLKU OLI VÄÄRÄ